防爆斷路器:危險區域電路安全的終極守護者
一、 產品概述
防爆斷路器是專為爆炸危險環境(如石油、化工、煤礦、燃氣、制藥等存在易燃易爆氣體或粉塵的場所)設計的特殊斷路器。它的核心功能與普通斷路器相同,即接通、分斷電路,并在電路發生過載、短路等故障時自動切斷電流,保護后續的線路和設備**。其最關鍵的區別在于,它通過特殊的設計,確保其在分斷故障電流時產生的巨大電弧和火花被完全密封和隔離,絕不會引燃外部爆炸性環境,是實現危險區域電力安全的核心保護器件。
二、 核心功能與特點
1. 本質安全設計:
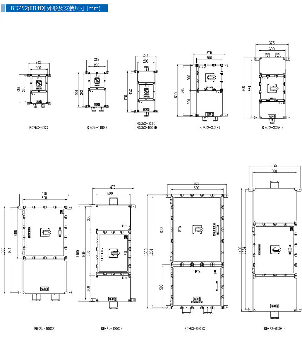
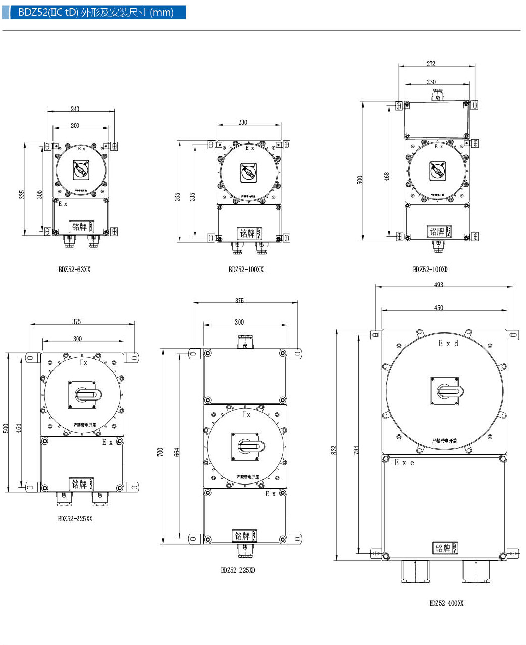
· 主要采用 隔爆型(Ex d) 防爆結構。其外殼被設計得極其堅固,能夠承受內部因分斷短路電流而產生的爆炸壓力而不損壞。
· 殼體的接合面采用精加工的“隔爆面”,并具有精確的間隙。當內部爆炸時,火焰穿過間隙的過程中會被充分冷卻和降壓,到達殼體外部時已無法點燃周圍環境,從而實現“隔爆”。
· 具有良好的密封性,防護等級通常達到IP65/IP66,能有效防止粉塵和水分侵入。
2. 強大的分斷與保護能力:
· 具備高分斷能力,能可靠地切斷巨大的短路故障電流。
· 提供精確的過載保護(通過熱脫扣元件)和短路保護(通過電磁脫扣元件),確保線路和電機等設備不被燒毀。
3. 多種操作與安裝方式:
· 操作方式:提供手動操作(直接手柄操作)、電動操作(遠程控制分合閘)和轉動手柄操作(通過外部機構操作,更加安全方便)。
· 安裝方式:可作為獨立單元安裝,也可作為核心元件內置于防爆配電箱、防爆動力箱、防爆正壓柜內使用。
· 極數:可提供單極、雙極、三極、四極(3P+N)等多種規格。
4. 高可靠性與環境適應性:
· 殼體通常采用高強度鋁合金、不銹鋼或優質工程塑料(用于粉塵防爆)制成,具有優異的抗沖擊、耐腐蝕和耐候性。
· 所有外部緊固件通常為不銹鋼材質,耐腐蝕。
三、 與普通斷路器的核心區別
特性 防爆斷路器 普通斷路器
安全目標 雙重安全:既要保護電路,更要防止引爆外部環境 單一安全:僅保護電路和設備
殼體結構 加厚、高強度,精密加工隔爆面,結構復雜 普通鈑金或塑料,無特殊抗爆要求
電弧處理 將電弧密封并熄滅在隔爆腔內 在空氣中自由熄滅
應用場所 爆炸危險區域(1區、2區,21區、22區) 非危險的安全區域
價格 高昂(因其復雜的設計、材料和認證) 相對低廉
四、 主要類型
1. 按防爆類型分:
· 氣體防爆斷路器 (Ex d): 最常見,用于IIA、IIB、IIC類氣體環境。
· 粉塵防爆斷路器 (Ex tD): 用于可燃性粉塵環境。
2. 按功能分:
· 防爆空氣斷路器 (ACB): 框架式,大電流,用于總電源進線。
· 防爆塑殼斷路器 (MCCB): 模塊化,常用作分支回路保護。
· 防爆微型斷路器 (MCB): 小型,主要用于照明、插座等小容量回路。
3. 按設計分:
· 整體防爆型: 斷路器本身就是一個完整的防爆單元。
· 改裝型: 將一個普通斷路器安裝在一個隔爆箱內,共同構成防爆功能。
五、 典型應用場景
· 石油平臺 & 煉油廠: 作為總進線開關或為泵、壓縮機等動力設備提供保護。
· 化工管道與罐區: 在泵站、裝卸區等危險區域分配電力和提供保護。
· 煤礦井下: 作為井下配電系統的核心保護元件。
· 糧食加工與倉儲: 在粉塵爆炸環境(如筒倉、粉碎車間)中保護輸送設備、除塵系統。
· 污水處理廠: 在曝氣池、沼氣區域等控制和保護設備。
六、 總結
防爆斷路器是危險區域電力系統的“安全閥門”和“鋼鐵衛士”。它不僅是電路的守護者,更是整個生產環境的安全屏障。其價值在于將強大的分斷能力與絕對可靠的防爆安全性能完美結合。選擇一款認證齊全、質量可靠、參數匹配的防爆斷路器,并進行正確安裝和維護,是構建本質安全型工廠、保障人員生命與財產安全的基石。









0577-27859971諾比防爆科技有限公司
地址:浙江省樂清市經濟開發區濱海南三路29號
郵箱:kongqinghai@cnnuobi.com

在線咨詢

關注公眾號